產品展示
product
800X壓差旁通閥產品簡介:
安徽富日閥門生產的壓差旁通閥主要應用于空調系統供、回水之間,保證供、回水之間的壓差于一固定值,提高系統的利用率,降低噪音,以及防止過大壓差對系統設備的損壞,其主要由主閥及壓差導閥組成。
800X壓差旁通閥工作原理:
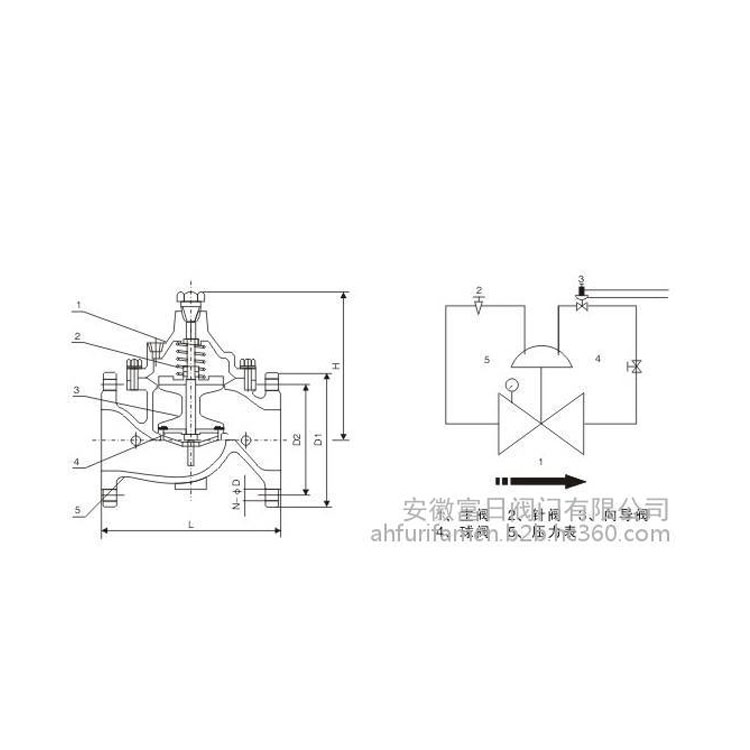
800X壓差旁通閥由主閥、壓差控制導閥、針閥、球閥、微形過濾器和壓力表組成水力控制接管系統。通過專門設計的導閥控制室,對壓力變化信號進行比較,輸出主閥開度信號,控制主閥開度,從而控制主閥的進出口壓差在設定值上。其工作原理是,當主閥進出口間壓差變化時,接管A與接管B間壓差發生變化,此變導閥的開度。壓差大時導閥開度大,控制室通過C管的下泄水量增大,主閥控制室壓力下降,主閥開度增大,主閥進出口間壓差變小。反之,若主閥進出口間壓差變小,則導閥開度變小,主閥控制室壓力上升,推動主閥開度減小而使主閥壓差增大。這種負反饋作用使主閥進出口間壓差穩定在社頂值上。設定針閥開度和導閥彈簧壓力可設定主閥進出口間壓差。本產品利用水力自力控制,不需要其它裝置和能源,保養簡便,廣泛用于高層建筑、生活區等供水管網系統及城市供水工程。
800X壓差旁通閥主要外形尺寸:

800X壓差旁通閥安裝:
1. 壓差旁通閥就小心裝卸,建議用軟的繩索起吊,以免損壞閥及配管,保護涂裝層,閥門應小心地放落地下,不能直接落于地面。
2. 安裝前的檢查:在裝卸到目的地后,首先按說明書上的內容檢查確認,配管是否正確,連接是否可靠,運輸過程中有無對閥門進行損壞,各種零件是否完整。
3. 安裝前應清理管道中的雜物,檢查相應的法蘭與閥門的法蘭壓力等級,公稱通徑相一致,以保持管路暢通。
4. 在壓差平衡閥前后,應安裝兩只閘閥,以檢測及維修時使用
5. 壓差向導閥之感應壓力的管道應直接接在供水及回水管道上,以達到能準確反應供回之間的壓差,為安裝使用的方便,可在感應管道上裝上小球閥。

